1900 Northwest Copper Oaks Circle, Blue Springs, MO 64015

Mortgage Calculator

$525,000
 est. $2,789/mo

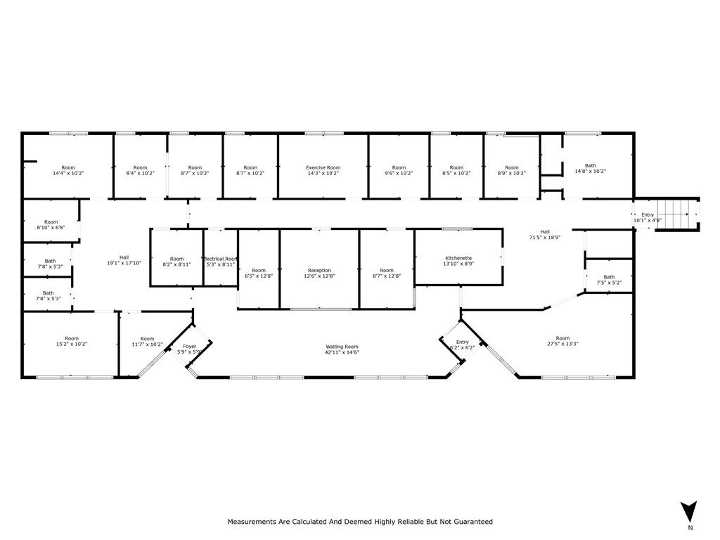
Flexibility in this space ... previously medical spa, medical office. Numerous office spaces and conference rooms for a variety of businesses. Higher-end finishes with Venetian plastered walls, and tiled floors throughout the space. Ample parking for clients and employees.

Directions
7 Highway to NW South Outer Rd / West on NW South Outer Rd to 15th St / South on 19th St / South on 19th St to NW Copper Oaks Circle ... 2nd entrance / Property located at the corner of 19th St and Copper Oaks Circle. GPS is accurate
Subdivision
Other
City
Blue Springs
County
Jackson
Property Type
Commercial Sale / Office
Listing Updated
Sep 15, 2025 at 12:09pm
MLS Number
2471909
Property Tax
$9,816
Zoning
$Comm
Disclaimer
The information displayed on this page is confidential, proprietary, and copyrighted information of Heartland Multiple Listing Service, Inc. (“Heartland MLS”). Copyright 2025, Heartland Multiple Listing Service, Inc. Heartland MLS, Elite Realty and Agent Jo do not make any warranty or representation concerning the timeliness or accuracy of the information displayed herein. In consideration for the receipt of the information on this page, the recipient agrees to use the information solely for the private non-commercial purpose of identifying a property in which the recipient has a good faith interest in acquiring.
The data relating to real estate displayed on this website comes in part from the Heartland Multiple Listing Service database compilation. The properties displayed on this website may not be all of the properties in the Heartland MLS database compilation, or all of the properties listed with other brokers participating in the Heartland MLS IDX program. Detailed information about the properties displayed on this website includes the name of the listing company.
Information is deemed reliable but is not guaranteed.

Copyright © 2025 ELITE Realty.