3024 224 Highway, Napoleon, MO 64074

     
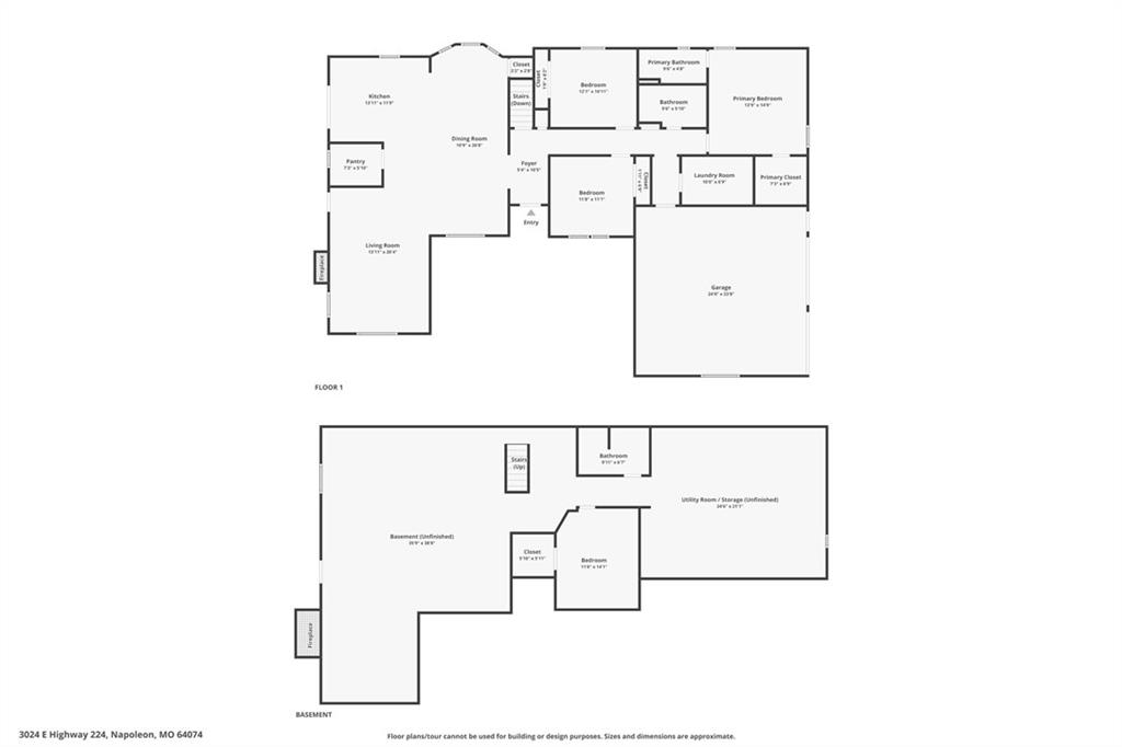
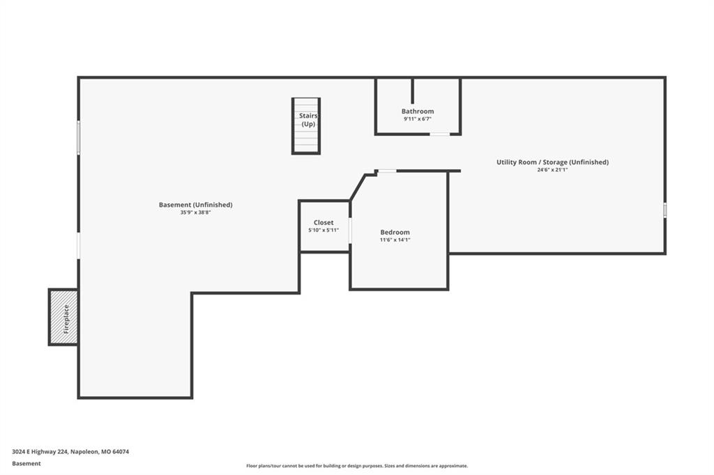
  • 3Beds
  •   
  • 3 Baths
  •  
  • 0½ Baths
  •  
  • 2,208Sq Ft
Mortgage Calculator

$539,900
 est. $2,244/mo

Welcome to your dream home—a beautifully renovated all-brick ranch nestled on 6 serene acres, offering the perfect blend of modern convenience and classic charm. This immaculate 3-bedroom, 3-bath residence has been meticulously updated from top to bottom, ensuring a move-in ready experience with every detail thoughtfully addressed. As you approach, you'll be greeted by a paved driveway that leads you off a blacktop highway, just moments from the picturesque Missouri River. The home is surrounded by mature timber, providing unparalleled privacy and a tranquil setting. Step inside to discover a spacious open-concept layout, where natural light floods the home, highlighting the new, high-quality flooring and fresh paint throughout. Two inviting fireplaces add warmth and ambiance to the living spaces, creating cozy spots for relaxation. The heart of the home is the newly remodeled kitchen, featuring sleek granite countertops, a custom pantry, and all-new appliances. An island with seating invites casual dining and conversation, making this a perfect space for both everyday meals and entertaining. The main level includes a convenient laundry room and three generously sized bedrooms, each offering comfort and style. The master suite is a private retreat with its own full bath. Outside, you’ll enjoy multiple areas for outdoor living, including a covered deck and two expansive patios, ideal for hosting gatherings or simply enjoying the serene surroundings. The large lot is enveloped by mature trees, ensuring your privacy and providing a picturesque backdrop to your everyday life. Additional features include a 2-car garage and access to the highly-regarded Wellington-Napoleon R-9 School District. Don’t miss the opportunity to own this exceptional home where every detail has been considered and every space has been beautifully renovated. Schedule your viewing today and experience the perfect blend of privacy, luxury, and nature.

Directions
From D Highway and 24 Highway, north on D/Chestnut to 224 Highway, east on 224 Highway to address on the south.
Subdivision
Other
City
Napoleon
County
Lafayette
Property Type
Residential / Single Family Residence
Listing Updated
Apr 22, 2026 at 11:04am
MLS Number
2509090
Property Tax
$2,603
Home Owners Association
No
Disclaimer
The information displayed on this page is confidential, proprietary, and copyrighted information of Heartland Multiple Listing Service, Inc. (“Heartland MLS”). Copyright 2026, Heartland Multiple Listing Service, Inc. Heartland MLS, Elite Realty and Agent Jo do not make any warranty or representation concerning the timeliness or accuracy of the information displayed herein. In consideration for the receipt of the information on this page, the recipient agrees to use the information solely for the private non-commercial purpose of identifying a property in which the recipient has a good faith interest in acquiring.
The data relating to real estate displayed on this website comes in part from the Heartland Multiple Listing Service database compilation. The properties displayed on this website may not be all of the properties in the Heartland MLS database compilation, or all of the properties listed with other brokers participating in the Heartland MLS IDX program. Detailed information about the properties displayed on this website includes the name of the listing company.
Information is deemed reliable but is not guaranteed.

Copyright © 2026 ELITE Realty.