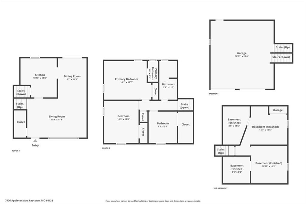
7906 Appleton Avenue, Raytown, MO 64138

     
  • 3Beds
  •   
  • 1 Bath
  •  
  • 1½ Bath
  •  
  • 1,445Sq Ft
Mortgage Calculator

$209,000
 est. $803/mo

Charming Starter Home in Raytown, MO UNDER 250,000! Step into this inviting three-bedroom, two-bath home, perfect for creating your very first memories of homeownership. Original hardwood floors flow throughout the main living areas, complemented by a dining space just off the living room with abundant natural light. French doors lead to a generous deck—ideal for morning coffee or weekend gatherings. The partially finished basement offers extra space that’s ready for your personal touch, whether you envision a cozy family room, home office, non conforming 4th bedroom or workout area. A two-car garage and functional layout make this home both practical and full of potential. Move in and start working on making it your own today! Updates within the last 7 years include Electrical panel, Main Sewer line has been replaced to PVC . Main line plumbing line in house updated to PVC as well, New furnace installed 9/2025, kitchen updates and more.

Directions
I-470 s towards Lee's Summit. Take exit 7b to merge onto MO-350 west bound. Take 350 Hwy to 4.0 miles to Harris Ave. Turn Left on Harris Ave then take a right on 79th Street. Take 79th Street to Appleton Ave. Turn Left to address and home is on the right side
Subdivision
Southwood
City
Raytown
County
Jackson
Property Type
Residential / Single Family Residence
Listing Updated
Oct 25, 2025 at 8:10pm
MLS Number
2572747
Property Tax
$212
Home Owners Association
No
Disclaimer
The information displayed on this page is confidential, proprietary, and copyrighted information of Heartland Multiple Listing Service, Inc. (“Heartland MLS”). Copyright 2025, Heartland Multiple Listing Service, Inc. Heartland MLS, Elite Realty and Agent Jo do not make any warranty or representation concerning the timeliness or accuracy of the information displayed herein. In consideration for the receipt of the information on this page, the recipient agrees to use the information solely for the private non-commercial purpose of identifying a property in which the recipient has a good faith interest in acquiring.
The data relating to real estate displayed on this website comes in part from the Heartland Multiple Listing Service database compilation. The properties displayed on this website may not be all of the properties in the Heartland MLS database compilation, or all of the properties listed with other brokers participating in the Heartland MLS IDX program. Detailed information about the properties displayed on this website includes the name of the listing company.
Information is deemed reliable but is not guaranteed.

Copyright © 2025 ELITE Realty.