23509 W 93rd Street, Lenexa, KS 66227

     
  • 6Beds
  •   
  • 4 Baths
  •  
  • 1½ Bath
  •  
  • 4,010Sq Ft
Mortgage Calculator

$645,000
 est. $3,014/mo

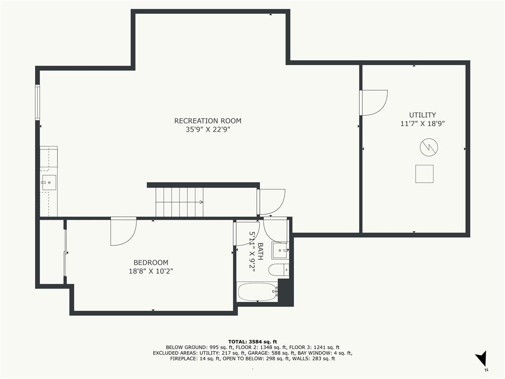
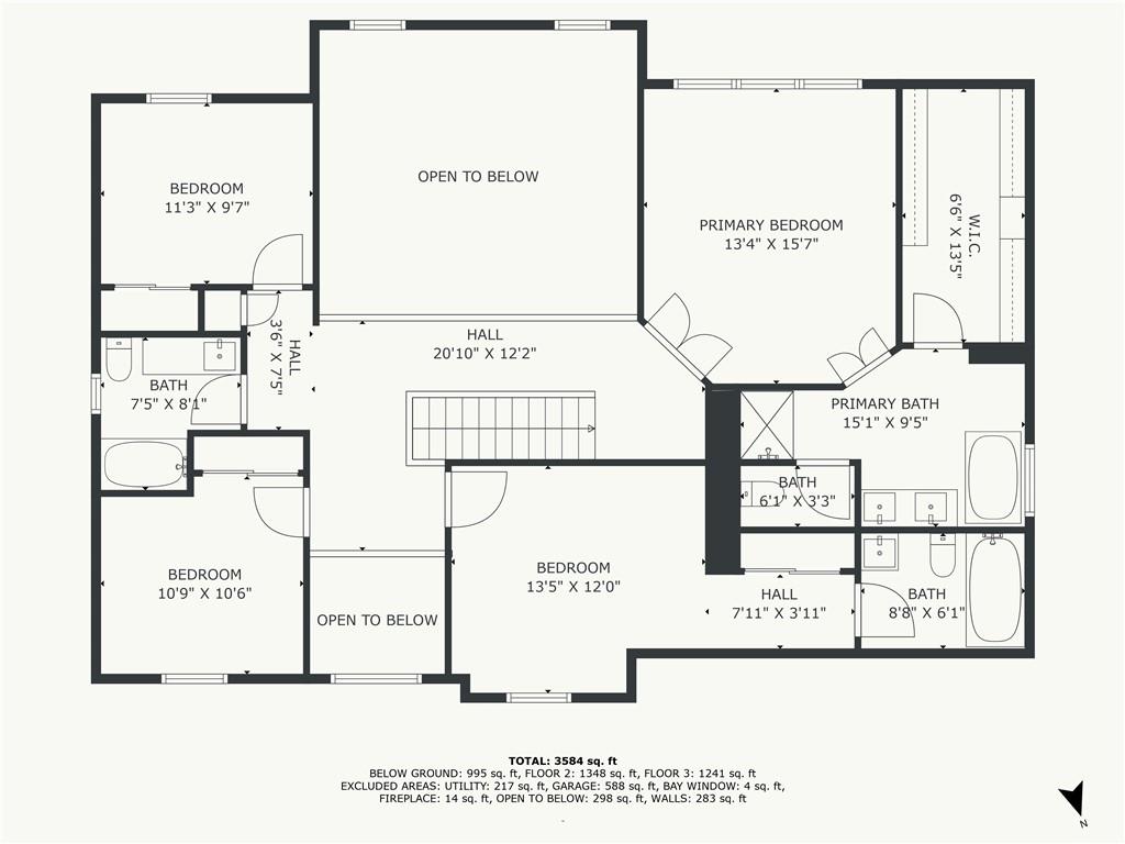
A bold stone and siding exterior with arched entry makes a lasting first impression. Step inside to find soaring ceilings, an open-concept floor plan, and expansive windows that flood the home with natural light. The main level features an office, a secondary private cozy sitting room and laundry room. The dramatic two-story great room features a statement fireplace wall and an elegant chandelier, creating the perfect backdrop for gatherings. Upstairs, the primary suite retreat offers a spa-like bath with dual vanities, soaking tub, walk-in shower, and a generous walk-in closet. Additional bedrooms are a great size and have beautifully designed bathrooms showcasing high-end tile and modern finishes. The finished lower level transforms into an entertainer’s dream with a spacious recreation room, wet bar, guest suite, and full bath—perfect for game nights or extended stays.

Directions
K-7 to prairie star parkway, first exit in round about, take your first left, second house on the left corner
Subdivision
The Reserve
City
Lenexa
County
Johnson, KS
Property Type
Residential / Single Family Residence
Listing Updated
Nov 01, 2025 at 2:11pm
MLS Number
2575241
Property Tax
$7,110
Home Owners Association
Yes
Disclaimer
The information displayed on this page is confidential, proprietary, and copyrighted information of Heartland Multiple Listing Service, Inc. (“Heartland MLS”). Copyright 2025, Heartland Multiple Listing Service, Inc. Heartland MLS, Elite Realty and Agent Jo do not make any warranty or representation concerning the timeliness or accuracy of the information displayed herein. In consideration for the receipt of the information on this page, the recipient agrees to use the information solely for the private non-commercial purpose of identifying a property in which the recipient has a good faith interest in acquiring.
The data relating to real estate displayed on this website comes in part from the Heartland Multiple Listing Service database compilation. The properties displayed on this website may not be all of the properties in the Heartland MLS database compilation, or all of the properties listed with other brokers participating in the Heartland MLS IDX program. Detailed information about the properties displayed on this website includes the name of the listing company.
Information is deemed reliable but is not guaranteed.

Copyright © 2025 ELITE Realty.