513 W Smith Street, Spring Hill, KS 66083

     
  • 2Beds
  •   
  • 1 Bath
  •  
  • 0½ Baths
  •  
  • 877Sq Ft
Mortgage Calculator

$275,000
 est. $1,533/mo

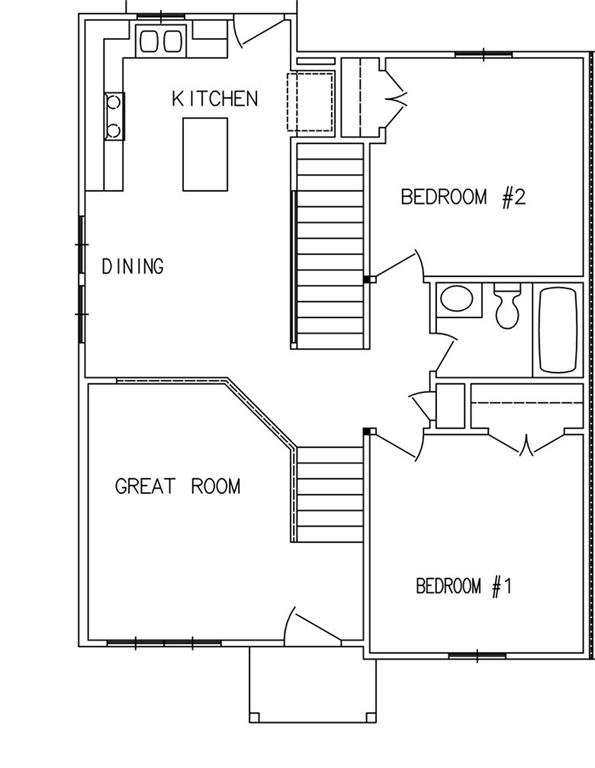
Move in Ready with a NEW PRICE! New construction half duplex. This split plan is open from the living room up to the kitchen and dining area. The kitchen offers granite counter tops, a stainless appliance package and generous cabinet space! Two bedrooms and a full bath round out the main floor. The walkout lower level could be finished for additional recreation room and 2nd full bath. There is also a sub basement for additional storage.

Directions
From Webster right on Lawrence to Jackson, right to Smith home is on the left.
Subdivision
Spring Hill
City
Spring Hill
County
Johnson, KS
Property Type
Residential / Half Duplex
Listing Updated
Apr 10, 2026 at 2:04pm
MLS Number
2576318
Property Tax
$6,000
Home Owners Association
No
Disclaimer
The information displayed on this page is confidential, proprietary, and copyrighted information of Heartland Multiple Listing Service, Inc. (“Heartland MLS”). Copyright 2026, Heartland Multiple Listing Service, Inc. Heartland MLS, Elite Realty and Agent Jo do not make any warranty or representation concerning the timeliness or accuracy of the information displayed herein. In consideration for the receipt of the information on this page, the recipient agrees to use the information solely for the private non-commercial purpose of identifying a property in which the recipient has a good faith interest in acquiring.
The data relating to real estate displayed on this website comes in part from the Heartland Multiple Listing Service database compilation. The properties displayed on this website may not be all of the properties in the Heartland MLS database compilation, or all of the properties listed with other brokers participating in the Heartland MLS IDX program. Detailed information about the properties displayed on this website includes the name of the listing company.
Information is deemed reliable but is not guaranteed.

Copyright © 2026 ELITE Realty.