16430 Dana Lane, Leavenworth, KS 66048

     
  • 4Beds
  •   
  • 3 Baths
  •  
  • 0½ Baths
  •  
  • 2,632Sq Ft
Mortgage Calculator

$499,950
 est. $2,428/mo

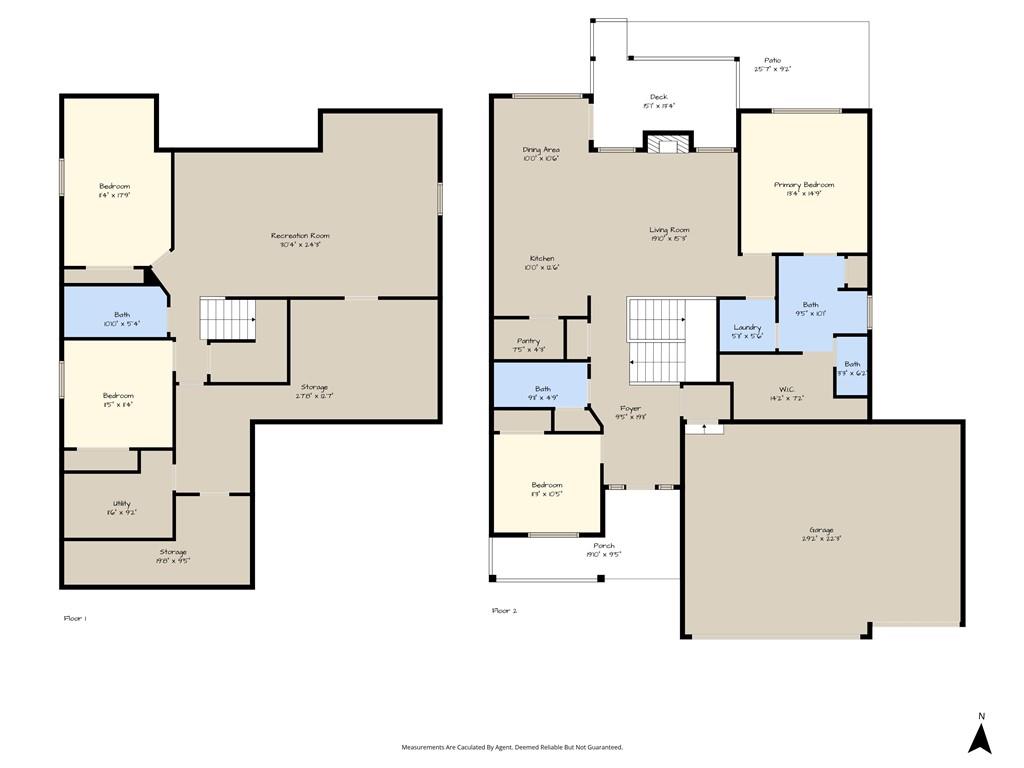
No fault of seller back on market. GORGEOUS 4 BEDROOM REVERSE 1.5 STORY ON OVER AN ACRE WITH STUNNING COUNTRY VIEWS! This beautiful home offers the perfect blend of comfort, style, and space. The open floor plan features a large kitchen with granite counters, an oversized island, walk-in pantry, and rich hardwood floors that flow into the dining and great room areas. The inviting great room includes tall ceilings and a cozy fireplace—ideal for relaxing or entertaining. The spacious main-floor master suite is a true retreat, featuring a luxurious bath with double vanities, a walk-in shower, and a huge closet with direct access to the laundry room. The finished basement expands your living space with two additional bedrooms, a family room, full bath, and plenty of storage, plus storm shelter under front porch. Step outside to enjoy the peaceful views from your patio or gather around a fire pit on crisp evenings. The property also includes a 24x24 detached garage—perfect for extra vehicles, a workshop, or hobby space. With over an acre of land, this home delivers the tranquility of country living while being just minutes from city conveniences, shopping, dining, and highway access. This one truly checks all the boxes!

Directions
From 7 Hwy go West on 4-H Rd, right on Gilman Rd, left on 166th St, right on Dana Ln to property.
Subdivision
Other
City
Leavenworth
County
Leavenworth
Property Type
Residential / Single Family Residence
Listing Updated
Oct 31, 2025 at 12:10pm
MLS Number
2578895
Property Tax
$6,604
Home Owners Association
No
Disclaimer
The information displayed on this page is confidential, proprietary, and copyrighted information of Heartland Multiple Listing Service, Inc. (“Heartland MLS”). Copyright 2025, Heartland Multiple Listing Service, Inc. Heartland MLS, Elite Realty and Agent Jo do not make any warranty or representation concerning the timeliness or accuracy of the information displayed herein. In consideration for the receipt of the information on this page, the recipient agrees to use the information solely for the private non-commercial purpose of identifying a property in which the recipient has a good faith interest in acquiring.
The data relating to real estate displayed on this website comes in part from the Heartland Multiple Listing Service database compilation. The properties displayed on this website may not be all of the properties in the Heartland MLS database compilation, or all of the properties listed with other brokers participating in the Heartland MLS IDX program. Detailed information about the properties displayed on this website includes the name of the listing company.
Information is deemed reliable but is not guaranteed.

Copyright © 2025 ELITE Realty.