 
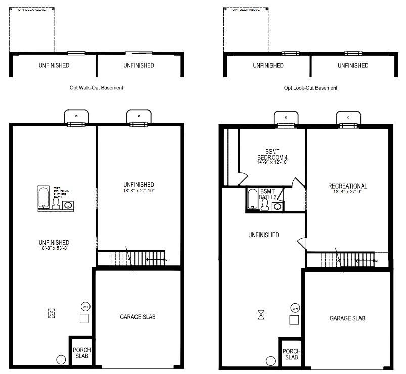
                The Newcastle plan by D.R. Horton features a very spacious 1,635 sq. ft. of modern living space, offering 3 bedrooms and 2 baths. The primary bedroom (13’ x 15’) is a welcoming retreat for relaxation. Enjoy an open floor plan filled with natural light, showcasing a stylish kitchen with contemporary cabinetry and Whirlpool® stainless steel appliances. An unfinished basement that can add 800+ more square footage and additional living space to your home. Smart Home technology enhances convenience and efficiency, making this home perfect for today’s lifestyle. Additional features include luxury vinyl plank flooring, a spacious garage and 10x10 deck with stairs.
Copyright © 2025 ELITE Realty.