201 E Mill Street, Osawatomie, KS 66064

     
  • 4Beds
  •   
  • 2 Baths
  •  
  • 0½ Baths
  •  
  • 1,966Sq Ft
Mortgage Calculator

$225,000
 est. $1,179/mo

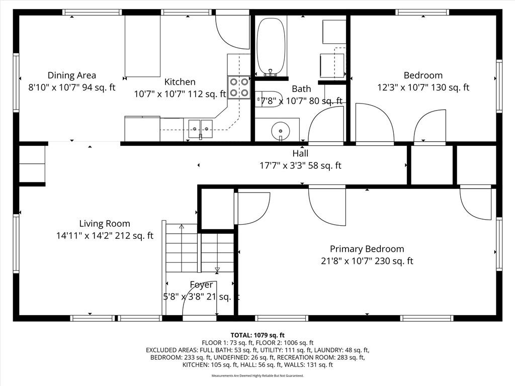
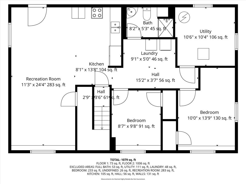
So many possibilities with this well maintained home! The lower level could operate completely independent of the upstairs with its own outside entrance, kitchenette, 3/4 bath and laundry. Perfect for rental income, extended families, adult children or home business! Have a dog? This property already has a large fully fenced yard and 2 dog doors. Trouble with stairs? The oversized deck has an electric lift to make main level living stair free. The primary bedroom was doubled in size by the previous owners by combining 2 bedrooms and could be renovated back to 2 bedrooms to make this a 5 bedroom home. Beautiful hardwood floors throughout the main level and wood blinds throughout the entire house. Home comes with a washer/dryer on both levels along with refrigerator and stove on both levels!

Directions
from Hwy 169, go west on Main St, left on Leroy Ave, house straight ahead at T
Subdivision
Osawatomie
City
Osawatomie
County
Miami
Property Type
Residential / Single Family Residence
Listing Updated
Oct 24, 2025 at 12:10pm
MLS Number
2583128
Property Tax
$4,011
Home Owners Association
No
Disclaimer
The information displayed on this page is confidential, proprietary, and copyrighted information of Heartland Multiple Listing Service, Inc. (“Heartland MLS”). Copyright 2025, Heartland Multiple Listing Service, Inc. Heartland MLS, Elite Realty and Agent Jo do not make any warranty or representation concerning the timeliness or accuracy of the information displayed herein. In consideration for the receipt of the information on this page, the recipient agrees to use the information solely for the private non-commercial purpose of identifying a property in which the recipient has a good faith interest in acquiring.
The data relating to real estate displayed on this website comes in part from the Heartland Multiple Listing Service database compilation. The properties displayed on this website may not be all of the properties in the Heartland MLS database compilation, or all of the properties listed with other brokers participating in the Heartland MLS IDX program. Detailed information about the properties displayed on this website includes the name of the listing company.
Information is deemed reliable but is not guaranteed.

Copyright © 2025 ELITE Realty.