1333 Southeast 12th Terrace, Lee's Summit, MO 64081

     
  • 3Beds
  •   
  • 2 Baths
  •  
  • 1½ Bath
  •  
  • 2,464Sq Ft
Mortgage Calculator

$400,000
 est. $1,828/mo

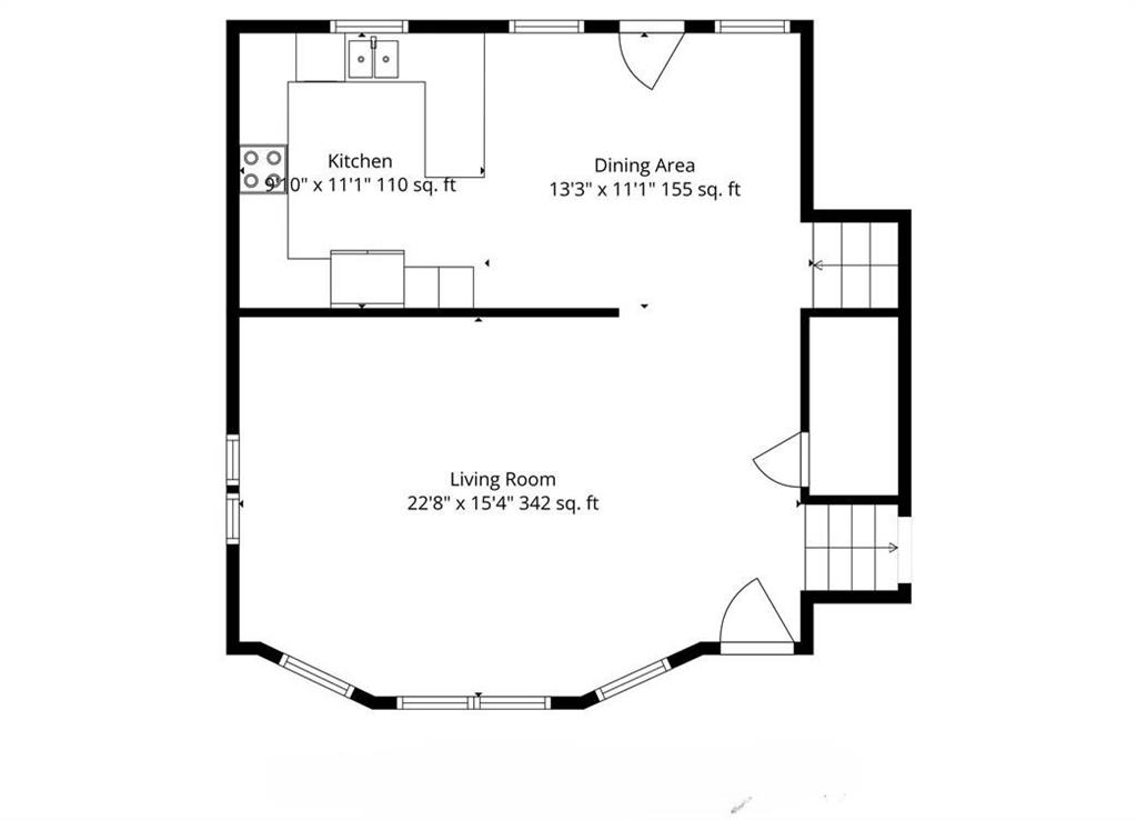
Welcome to this lovely atrium split style home, perfectly positioned (with-in walking distance) to the brand new EAST TRAILS middle school, The popular Happy Trails dog park, James A Reed wildlife preserve, where you can enjoy nature trails and great fishing and The exceptional Sunset Valley Elementary is a short drive! The neighborhood POOL is a nice feature and is just around the corner! This home boasts 3 bedrooms, 3 bathrooms & an oversized 3 car garage! This floorplan is a great for entertaining! Nice size front porch to enjoy morning coffee, And ENJOY the best sunsets on the oversized composite deck w no neighbors behind you! Very large living room, with vaulted ceilings> kitchen/dining combo (refrigerator stays) with hardwood floors ,ss appliances, granite counters, picture windows overlooking the new composite deck with a large fenced yard and a nice new fire pit area! The family room has a cozy fireplace and walks out to a private patio! Upstairs you will find a laundry room (washer/dryer stay) next to the hall bath. Master bedroom is huge with a walk-in closet, ensuite with double sinks and a jacuzzi tub! 2nd and 3rd bedroom are nice size and have good closet space. The basement was just finished and could be a 4th non-conforming bedroom, movie room, or man cave! New paint inside and out and newer carpet!

Directions
From 50 HWY, turn south on Todd George/ SE Ranson Rd. Turn right on SE 12 St and turn left onto SE 12 Terr to the home on the left.
Subdivision
Oak Hill South
City
Lee's Summit
County
Jackson
Property Type
Residential / Single Family Residence
Listing Updated
Dec 11, 2025 at 5:12pm
MLS Number
2589907
Property Tax
$3,910
Home Owners Association
Yes
Disclaimer
The information displayed on this page is confidential, proprietary, and copyrighted information of Heartland Multiple Listing Service, Inc. (“Heartland MLS”). Copyright 2025, Heartland Multiple Listing Service, Inc. Heartland MLS, Elite Realty and Agent Jo do not make any warranty or representation concerning the timeliness or accuracy of the information displayed herein. In consideration for the receipt of the information on this page, the recipient agrees to use the information solely for the private non-commercial purpose of identifying a property in which the recipient has a good faith interest in acquiring.
The data relating to real estate displayed on this website comes in part from the Heartland Multiple Listing Service database compilation. The properties displayed on this website may not be all of the properties in the Heartland MLS database compilation, or all of the properties listed with other brokers participating in the Heartland MLS IDX program. Detailed information about the properties displayed on this website includes the name of the listing company.
Information is deemed reliable but is not guaranteed.

Copyright © 2025 ELITE Realty.