201 W 19th Street, Holden, MO 64040

     
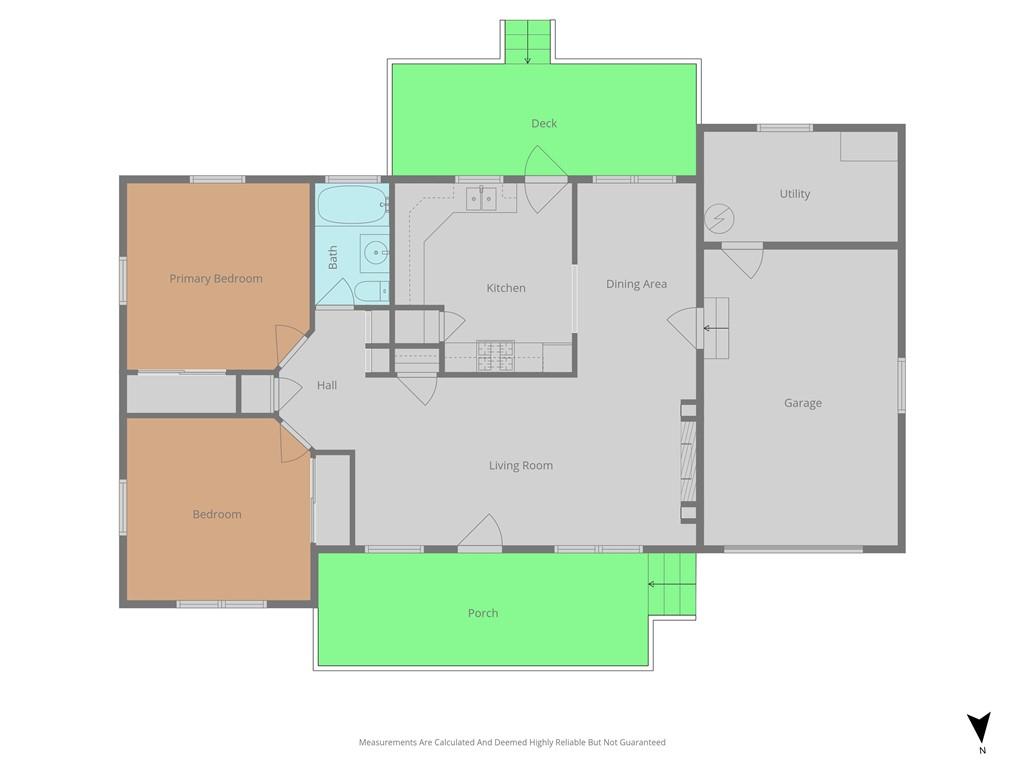
  • 2Beds
  •   
  • 1 Bath
  •  
  • 0½ Baths
  •  
  • 1,202Sq Ft
Mortgage Calculator

$209,900
 est. $839/mo

Wait till you open the door and see inside of what the seller has bought to life in the home. New paint, flooring, new deck in front, new doors, new hardware, newer appliances, new water heater, new garage door, redone countertops, and more. Lets talk about location next to schools, tennis courts, & playgrounds. Home has a big, fenced yard and sellers enjoyed the fire pit and swimming pool they had up. Yard is big enough to build on to home if your family grows. Large bedrooms and amazing kitchen with pantry. Come and see for yourself. This is a happy home. MORE PICTURES COMING ON FRIDAY

Directions
Holden south on 131 highway to 19th Street east on 19th to home.
Subdivision
Other
City
Holden
County
Johnson, MO
Property Type
Residential / Single Family Residence
Listing Updated
Jan 15, 2026 at 1:01pm
MLS Number
2595184
Property Tax
$607
Home Owners Association
No
Disclaimer
The information displayed on this page is confidential, proprietary, and copyrighted information of Heartland Multiple Listing Service, Inc. (“Heartland MLS”). Copyright 2026, Heartland Multiple Listing Service, Inc. Heartland MLS, Elite Realty and Agent Jo do not make any warranty or representation concerning the timeliness or accuracy of the information displayed herein. In consideration for the receipt of the information on this page, the recipient agrees to use the information solely for the private non-commercial purpose of identifying a property in which the recipient has a good faith interest in acquiring.
The data relating to real estate displayed on this website comes in part from the Heartland Multiple Listing Service database compilation. The properties displayed on this website may not be all of the properties in the Heartland MLS database compilation, or all of the properties listed with other brokers participating in the Heartland MLS IDX program. Detailed information about the properties displayed on this website includes the name of the listing company.
Information is deemed reliable but is not guaranteed.

Copyright © 2026 ELITE Realty.