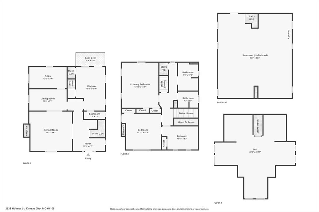
2538 Holmes Street, Kansas City, MO 64108

     
  • 5Beds
  •   
  • 2 Baths
  •  
  • 1½ Bath
  •  
  • 2,332Sq Ft
Mortgage Calculator

$599,000
 est. $3,419/mo

Welcome to Holmes Place located in the heart of Longfellow where historic ARTISTRY meets today's modern amenities. Imagine living here and/or running a business amongst the beautifully preserved woodwork, working pocket doors, high ceilings, original fire places, and stately stone accents. You will love the WALKABILITY of this location. This home has been perfectly cared for to stand the test of time as you can see from the brick exterior with stone shirtwaist columns. You can't miss the charming stained glass windows, inviting reading nooks and TWO cozy fireplaces. Upgrades include a tankless water heater and amazing 3rd floor rec space! The walk-out basement is currently used for storage and has high ceilings - perfect for converting to additional living space, second unit, business, or speakeasy! Dreaming of becoming a short term rental host to take advantage of the World Cup? This home is currently operated as a furnished rental and can continue sharing all it has to offer as it *used as a commercially zoned property*! It is ideally located walkable to Crown Center, Hospital Hill, parks, and local eateries. Get to Downtown in minutes with the streetcar pickup being only .6 miles away! On site parking in the rear of the home or on the street in the front.

Directions
From I-35 Exit on 635 West to 71 Hwy and Exit on 22nd street. Go Left (South) on Charlotte until you hit East 26th. Turn Right and Right again on Holmes Street. The house is on your left.
Subdivision
Longfellow
City
Kansas City
County
Jackson
Property Type
Residential / Single Family Residence
Listing Updated
Mar 06, 2026 at 7:03pm
MLS Number
2599083
Property Tax
$14,038
Home Owners Association
No
Disclaimer
The information displayed on this page is confidential, proprietary, and copyrighted information of Heartland Multiple Listing Service, Inc. (“Heartland MLS”). Copyright 2026, Heartland Multiple Listing Service, Inc. Heartland MLS, Elite Realty and Agent Jo do not make any warranty or representation concerning the timeliness or accuracy of the information displayed herein. In consideration for the receipt of the information on this page, the recipient agrees to use the information solely for the private non-commercial purpose of identifying a property in which the recipient has a good faith interest in acquiring.
The data relating to real estate displayed on this website comes in part from the Heartland Multiple Listing Service database compilation. The properties displayed on this website may not be all of the properties in the Heartland MLS database compilation, or all of the properties listed with other brokers participating in the Heartland MLS IDX program. Detailed information about the properties displayed on this website includes the name of the listing company.
Information is deemed reliable but is not guaranteed.

Copyright © 2026 ELITE Realty.