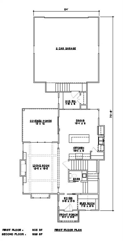
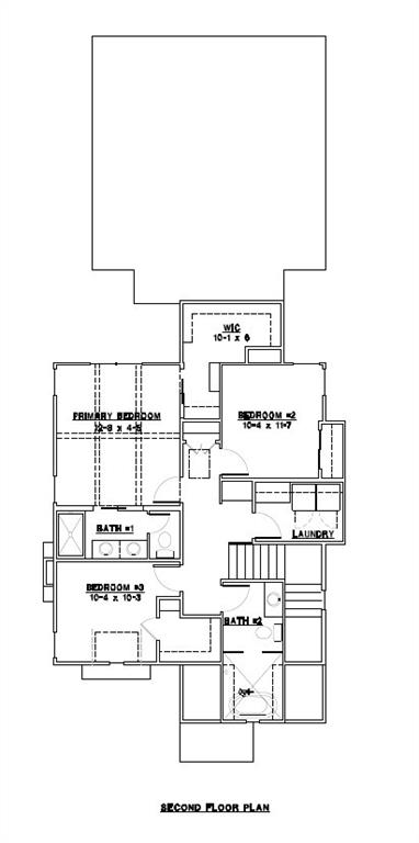
Gorgeous spec home by Landrock Signature Homes featuring timeless Tudor charm and thoughtful design throughout. This home lives larger than expected, offering a spacious living room with a coffered ceiling, a generous kitchen with pantry and dedicated dining area, and a convenient main-floor pocket office. Enjoy vaulted ceilings in both the primary suite and second bedroom, creating an open and airy feel. An oversized two-car garage provides plenty of room to stretch out, while the covered patio is perfect for relaxing or entertaining. Located in one of Lee’s Summit’s most desirable neighborhoods, residents enjoy access to a stunning 20-acre lake, historic pergola, pool, playground, walking trails, and abundant green space. Don’t miss your opportunity to see this exceptional home before it’s gone. All photos are artist renderings.
Copyright © 2026 ELITE Realty.