2221 N 147th Street, Basehor, KS 66007

Mortgage Calculator

$1,700,000
 est. $7,757/mo

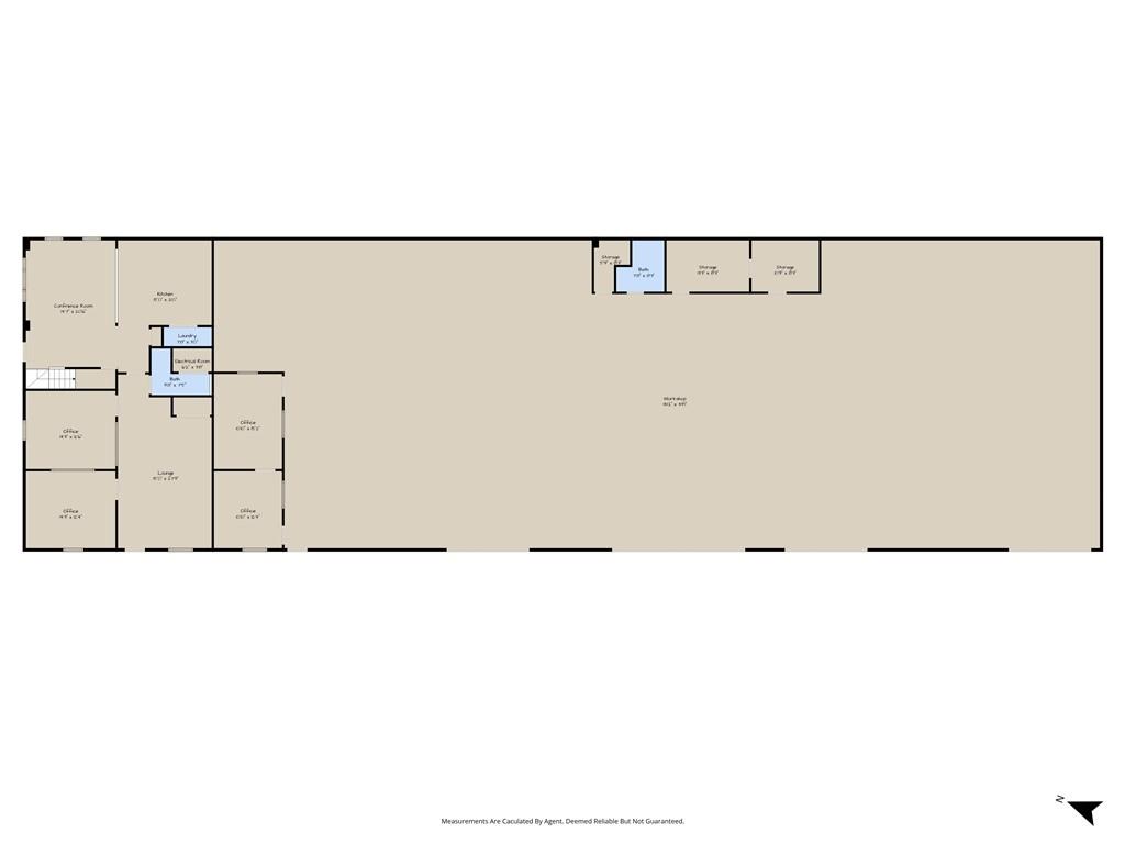
2-BUILDING 12,000 SF INDUSTRIAL COMPLEX NEAR KANSAS SPEEDWAY AND PROPOSED CHIEFS STADIUM! This I-1 zoned property includes two insulated buildings—an 8,000 sq ft main building with 3-phase power and dual entry points for truck deliveries, plus a 4,000 sq ft secondary building—offering excellent flexibility for industrial, shop, or warehouse use. The larger building features approximately 1,500 sq ft of office space with two bathrooms (one in the office and one in the shop), and part of the office area already functions like an apartment option with a full kitchen and an upstairs full bath. A new roof was installed on the main building in 2020. Property is currently leased. Located in a small town with quick access to 7 Highway, K-10, and I-70, this site sits just 4–5 miles from Kansas Speedway and the proposed Chiefs stadium.

Directions
From 7 Hwy go West on Parallel Rd, turn right on 147th St, follow to property on right.
Subdivision
Other
City
Basehor
County
Leavenworth
Property Type
Commercial Sale / Industrial
Listing Updated
Feb 19, 2026 at 10:02am
MLS Number
2602594
Property Tax
$16,505
Zoning
$I-1
Disclaimer
The information displayed on this page is confidential, proprietary, and copyrighted information of Heartland Multiple Listing Service, Inc. (“Heartland MLS”). Copyright 2026, Heartland Multiple Listing Service, Inc. Heartland MLS, Elite Realty and Agent Jo do not make any warranty or representation concerning the timeliness or accuracy of the information displayed herein. In consideration for the receipt of the information on this page, the recipient agrees to use the information solely for the private non-commercial purpose of identifying a property in which the recipient has a good faith interest in acquiring.
The data relating to real estate displayed on this website comes in part from the Heartland Multiple Listing Service database compilation. The properties displayed on this website may not be all of the properties in the Heartland MLS database compilation, or all of the properties listed with other brokers participating in the Heartland MLS IDX program. Detailed information about the properties displayed on this website includes the name of the listing company.
Information is deemed reliable but is not guaranteed.

Copyright © 2026 ELITE Realty.