6620 Northwest 136th Street, Kansas City, MO 64164

     
  • 3Beds
  •   
  • 3 Baths
  •  
  • 0½ Baths
  •  
  • 2,636Sq Ft
Mortgage Calculator

$575,000
 est. $2,449/mo

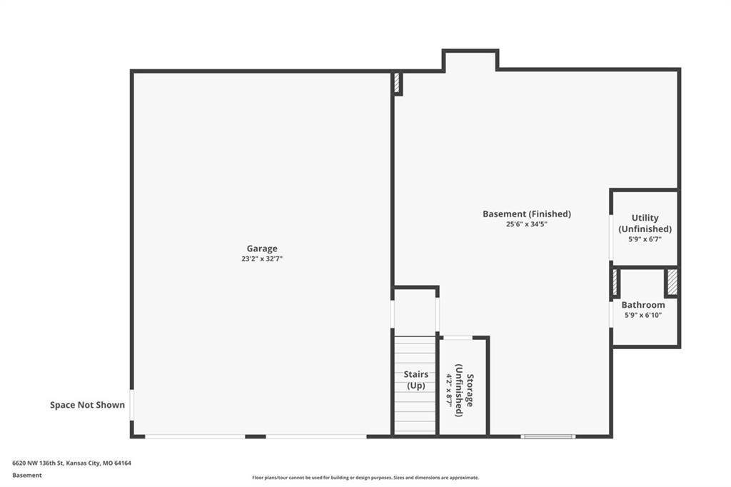
Tucked away on a beautiful 1.65-acre wooded estate lot in Coventry Gardens, this Kansas City property offers the rare blend of peaceful acreage living with everyday convenience. Located in the highly regarded Platte County R-III School District, this well-maintained traditional split-entry home features 3 bedrooms, 3 full bathrooms, a 3-car garage, and more than 2,600 square feet of finished living space designed for comfort and entertaining. The light-filled main level includes warm wood flooring, energy-efficient thermal windows, and a welcoming wood-burning fireplace perfect for cozy evenings. The kitchen offers granite countertops, a spacious pantry, and easy flow into the dining area. The main-level primary suite provides a relaxing retreat with a walk-in closet, ceiling fan, and a spacious bathroom with ceramic tile, double vanity, soaking tub, and separate shower. Two additional bedrooms with wood floors share a well-appointed hall bath. The finished lower level adds versatility with a large family room featuring luxury vinyl flooring, a third full bathroom, and flexible space ideal for movie nights, workouts, guests, or a home office. Outside, the property truly shines. A detached shop provides space for hobbies or storage, and the above-ground pool with custom deck creates the perfect setting for summer gatherings and weekend relaxation. Mature trees and wooded privacy offer a park-like feel while still being close to highways, shopping, dining, Kansas City amenities, and the airport. Coventry Gardens is known for its friendly community atmosphere, highlighted each year by a beloved neighborhood Fourth of July fireworks display. Opportunities to own a private acreage property like this are rare making this home a must-see when showings begin.

Directions
From 435 take Exit 37 for Skyview/C Hwy, North on skyview, West on 136th to house on corner of 136th and the west entrance on Ellen Ln
Subdivision
Coventry Gardens
City
Kansas City
County
Platte
Property Type
Residential / Single Family Residence
Listing Updated
Mar 31, 2026 at 9:03am
MLS Number
2606267
Property Tax
$3,475
Home Owners Association
No
Disclaimer
The information displayed on this page is confidential, proprietary, and copyrighted information of Heartland Multiple Listing Service, Inc. (“Heartland MLS”). Copyright 2026, Heartland Multiple Listing Service, Inc. Heartland MLS, Elite Realty and Agent Jo do not make any warranty or representation concerning the timeliness or accuracy of the information displayed herein. In consideration for the receipt of the information on this page, the recipient agrees to use the information solely for the private non-commercial purpose of identifying a property in which the recipient has a good faith interest in acquiring.
The data relating to real estate displayed on this website comes in part from the Heartland Multiple Listing Service database compilation. The properties displayed on this website may not be all of the properties in the Heartland MLS database compilation, or all of the properties listed with other brokers participating in the Heartland MLS IDX program. Detailed information about the properties displayed on this website includes the name of the listing company.
Information is deemed reliable but is not guaranteed.

Copyright © 2026 ELITE Realty.