1105 Fox Run Trail, Platte City, MO 64079

     
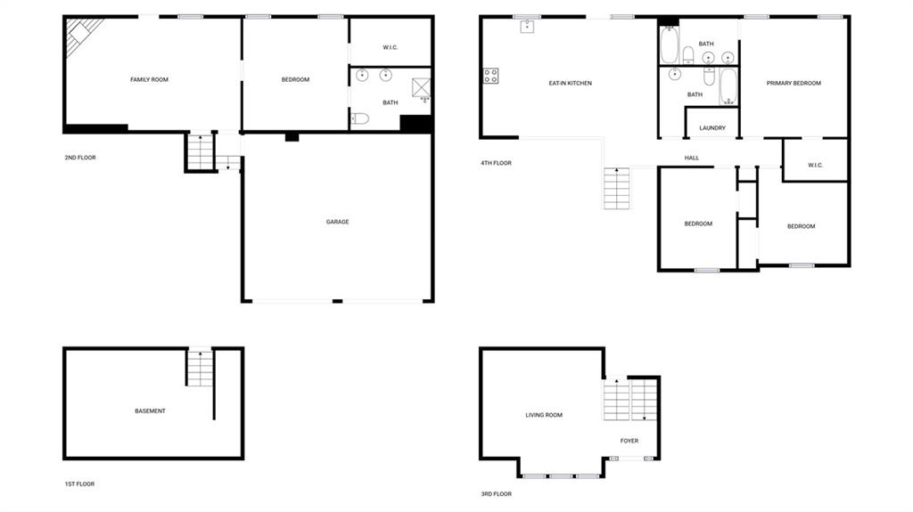
  • 4Beds
  •   
  • 3 Baths
  •  
  • 0½ Baths
  •  
  • 2,247Sq Ft
Mortgage Calculator

$401,000
 est. $1,860/mo

Welcome to 1105 Fox Run Trl, a residence featuring new flooring throughout the home, enhancing its appeal. The property includes a comforting fireplace, and the kitchen is equipped with all stainless steel appliances, an accent backsplash, and a functional island. The primary bedroom contains double closets, complementing the double sinks in the primary bathroom. Outside, a deck provides an area overlooking a fenced-in backyard. This home provides updated comfort and thoughtful amenities for easy living.. Included 100-Day Home Warranty with buyer activation

Directions
Head south on Running Horse Rd Turn right onto Maple Farm Rd Turn right onto Fox Run Trail
Subdivision
Estates Of Platte Valley
City
Platte City
County
Platte
Property Type
Residential / Single Family Residence
Listing Updated
Apr 21, 2026 at 2:04pm
MLS Number
2615374
Property Tax
$4,251
Home Owners Association
No
Disclaimer
The information displayed on this page is confidential, proprietary, and copyrighted information of Heartland Multiple Listing Service, Inc. (“Heartland MLS”). Copyright 2026, Heartland Multiple Listing Service, Inc. Heartland MLS, Elite Realty and Agent Jo do not make any warranty or representation concerning the timeliness or accuracy of the information displayed herein. In consideration for the receipt of the information on this page, the recipient agrees to use the information solely for the private non-commercial purpose of identifying a property in which the recipient has a good faith interest in acquiring.
The data relating to real estate displayed on this website comes in part from the Heartland Multiple Listing Service database compilation. The properties displayed on this website may not be all of the properties in the Heartland MLS database compilation, or all of the properties listed with other brokers participating in the Heartland MLS IDX program. Detailed information about the properties displayed on this website includes the name of the listing company.
Information is deemed reliable but is not guaranteed.

Copyright © 2026 ELITE Realty.